This property is currently unavailable.
We'll notify you when this property or any other unit in the same building becomes available.

Rent (monthly)
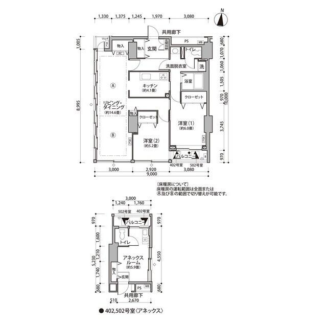
2LDK
Layout
Area
5
Floor
2019
Built in
Immediate
Move-in Status
Reinforced Concrete
Structure
2026/1/10
Added
2026/1/18
Last Updated
Nearby Stations
Ariake Station
- 3 mins walk to Ariake (Yurikamome)
Kokusaitenjijou Station
- 4 mins walk to Kokusaitenjijou (Rinkai line)
Ariaketenisunomori Station
- 6 mins walk to Ariaketenisunomori (Yurikamome)
Monthly Costs
Rent
Maintenance
One-time Move-in Costs (estimated)
Pro-rated Rent
Pro-rated Maintenance Fee
Deposit
Key Money
Lock Change Fee
Guarantor Fee
Fire Insurance Fee (estimated)
Agent Fee (Commission)
Contract Details
Fixed Term Lease:
No (renewable)
Free Rent:
None
Move In Conditions:
Musical instrument consultation
Additional Costs Details
Deposit Deductions (if applicable)
Miscellaneous
Property Features
Bath And Toilet Separated
Toilet
Dish Washing Machine
Garbage Disposal
Closet
Dryer In Bath Area
Security Camera
Elevator
Delivery Box
Auto Lock Entrance
Features Additional Information
Parking Information
Available
No
Vacancy
No
Price
¥0
Owned
No
Available
No
Vacancy
No
Price
¥0
Owned
No
Available
No
Vacancy
No
Price
N/A
Owned
No
Balcony Area:
14.76m²
Window Direction:
Westwards
Staff Work Schedule:
Day Shift
Estimated Utility Costs:
¥0/year
Special Notes:
The Exterior Is Tiled, And Trash Can Be Taken Out At All Times. Sale Type
Customer Stories
Read more stories on Google

Brad S
We had a great experience with AtHearth! Moving in Japan with limited language skills can be very stressful, but everything went really smoothly thanks to the staff at AtHearth. Everyone we worked with was super friendly and knowledgeable, and c...

June Cooper
AtHearth gave me a very positive experience, helping sort out all the stress of finding an apartment in Tokyo. I was fairly particular with my needs of a pet-friendly and sound-proofed apartment, but they were able to find a place within a few d...

Ho Tak Yu
As a foreigner who cannot speak and listen to Japanese like a local, AtHearth is your go-to agency when you need an apartment to settle. Be sure to get in touch with their team 2-3 weeks prior to your arrival to Japan so they can have a better p...

Ryan Hintzman
Working with Tomo and his team at AtHearth made my move to Tokyo so much less stressful and so much more successful than it would have been otherwise. I had good Japanese but had never lived in Japan before and had an unusual visa/salary situati...
Overall rating: ...
Based on 97+ reviews
Property Location
How far is the property from
Find how far this property is from your Office, School or any other place.
Other Rooms
|
0 Rooms
|
No other rooms found in this building
Similar Properties
|
10 Rooms
|