
利用可能(現在利用中 — 3月 2026下旬から利用可能)。*内覧なしでも申し込み可能です
家賃 (月額)
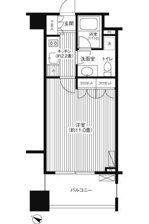
1K
間取り
面積
4
階
2005
築年
3月 2026下旬
入居状況
鉄筋コンクリート造
構造
2026/1/23
追加日
2026/2/2
最終更新日
最寄り駅
千駄ケ谷 駅
- 5 徒歩分 千駄ケ谷 (JR中央・総武線)
北参道 駅
- 6 徒歩分 北参道 (東京メトロ副都心線)
代々木 駅
- 19 徒歩分 代々木 (JR山手線)
月額費用
家賃
管理費
初回入居費用(概算)
日割り家賃
日割り管理費
敷金
礼金
鍵交換費用
保証会社利用料
火災保険料(概算)
仲介手数料
契約内容
定期借家契約:
No (renewable)
フリーレント:
None
入居条件:
ペット相談:小型犬可 猫可 小型犬1匹か猫2匹/敷金2ヶ月
追加費用の詳細
敷金の差し引き(該当する場合)
その他費用
物件の特徴
洗面所独立
室内洗濯機置場
フローリング
インターネット対応
コンクリートで作られた
2階以上
防犯カメラ
エレベーター
宅配BOX
オートロック
太陽光
Features Additional Information
駐車場情報
利用可
いいえ
空き
いいえ
料金
¥0
所有
いいえ
利用可
いいえ
空き
いいえ
料金
¥0
所有
いいえ
利用可
いいえ
空き
いいえ
料金
該当なし
所有
いいえ
窓の向き:
南西向き
光熱費の目安:
0円/年
特記事項:
常時ゴミ出し可能 オール電化
お客様の声
Googleでさらに詳しく読む

Brad S
We had a great experience with AtHearth! Moving in Japan with limited language skills can be very stressful, but everything went really smoothly thanks to the staff at AtHearth. Everyone we worked with was super friendly and knowledgeable, and c...

June Cooper
AtHearth gave me a very positive experience, helping sort out all the stress of finding an apartment in Tokyo. I was fairly particular with my needs of a pet-friendly and sound-proofed apartment, but they were able to find a place within a few d...

Ho Tak Yu
As a foreigner who cannot speak and listen to Japanese like a local, AtHearth is your go-to agency when you need an apartment to settle. Be sure to get in touch with their team 2-3 weeks prior to your arrival to Japan so they can have a better p...

Ryan Hintzman
Working with Tomo and his team at AtHearth made my move to Tokyo so much less stressful and so much more successful than it would have been otherwise. I had good Japanese but had never lived in Japan before and had an unusual visa/salary situati...
総合評価: ...
90件以上のレビューに基づく
物件所在地
この物件からの距離
この物件があなたの職場や学校、その他の場所からどのくらい離れているかを調べます。
他の部屋
|
5 部屋数
|
類似物件
|
10 部屋数
|