
利用可能(現在利用中 — AtHearthにお問い合わせくださいから利用可能)。*内覧なしでも申し込み可能です
家賃 (月額)
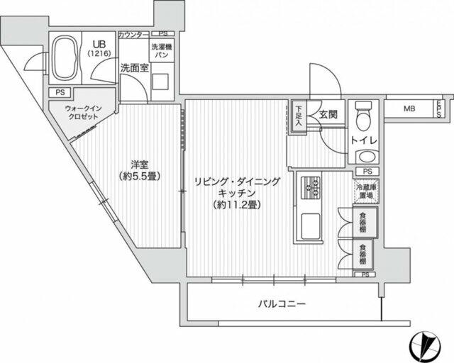
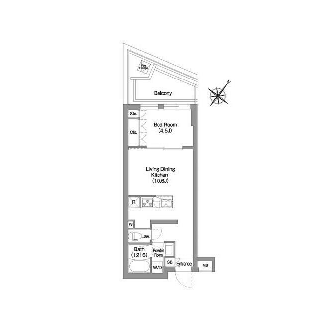
1LDK
間取り
面積
2
階
2011
築年
AtHearthにお問い合わせください
入居状況
鉄筋コンクリート造
構造
2025/12/16
追加日
2025/12/19
最終更新日
最寄り駅
方南町 駅
- 12 徒歩分 方南町 (東京メトロ丸ノ内線)
新代田 駅
- 15 徒歩分 新代田 (京王井の頭線)
笹塚 駅
- 22 徒歩分 笹塚 (京王線)
月額費用
家賃
管理費
初回入居費用(概算)
日割り家賃
日割り管理費
敷金
礼金
鍵交換費用
保証会社利用料
火災保険料(概算)
仲介手数料
契約内容
定期借家契約:
No (renewable)
フリーレント:
None
入居条件:
事務所使用不可楽器不可保証人不要ルームシェア不可
追加費用の詳細
敷金の差し引き(該当する場合)
その他費用
物件の特徴
B・T別
トイレ
収納スペース
クローゼット
家具付き
家電付
エレベーター
宅配BOX
オートロック
Features Additional Information
駐車場情報
利用可
いいえ
空き
いいえ
料金
¥0
所有
いいえ
利用可
いいえ
空き
いいえ
料金
¥0
所有
いいえ
利用可
いいえ
空き
いいえ
料金
該当なし
所有
いいえ
光熱費の目安:
0円/年
特記事項:
分譲タイプ
お客様の声
Googleでさらに詳しく読む

Brad S
We had a great experience with AtHearth! Moving in Japan with limited language skills can be very stressful, but everything went really smoothly thanks to the staff at AtHearth. Everyone we worked with was super friendly and knowledgeable, and c...

June Cooper
AtHearth gave me a very positive experience, helping sort out all the stress of finding an apartment in Tokyo. I was fairly particular with my needs of a pet-friendly and sound-proofed apartment, but they were able to find a place within a few d...

Ho Tak Yu
As a foreigner who cannot speak and listen to Japanese like a local, AtHearth is your go-to agency when you need an apartment to settle. Be sure to get in touch with their team 2-3 weeks prior to your arrival to Japan so they can have a better p...

Ryan Hintzman
Working with Tomo and his team at AtHearth made my move to Tokyo so much less stressful and so much more successful than it would have been otherwise. I had good Japanese but had never lived in Japan before and had an unusual visa/salary situati...
総合評価: ...
90件以上のレビューに基づく
物件所在地
この物件からの距離
この物件があなたの職場や学校、その他の場所からどのくらい離れているかを調べます。
他の部屋
|
4 部屋数
|
類似物件
|
10 部屋数
|